De ansatte melder inn produksjon sammen med timeføring, slik at timer og produksjon vil komme automatisk inn i dagsoppstillingen, med unntak av spesialstøp, som må legges inn manuelt.
Når en dag er ferdig må en huske på å krysse av "låst", som indikerer at manuelle oppdateringer er gjort og alle produksjonstall knyttet til dagen er lagt inn. Den hindrer også ansatte i å føre timer mot denne dagen.
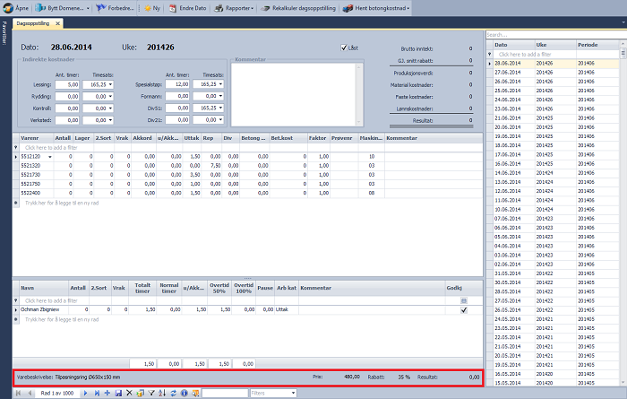
Her legger en inn medgåtte timer og timesats som ikke kan føres direkte mot vare
Produksjon (unntatt spesialstøp) vil komme automatisk her basert på ansattes innmelding av produksjon. Dersom en varelinje er merket rød, så er det et tegn på at flere ansatte har rapportert inn ulike produksjonstall, og en bør gjøre en manuell korreksjon i listen nedenfor.
Legg inn produksjonsdata fra spesialstøp manuelt ved å klikke på ny linje ("Trykk her for legge til ny rad")
For å legge inn betongkostnad og betong m3, må en først sørge for at rett faktor er satt. Faktor forteller hvor stor andel av maskinens betongkostnad som skal belastes produktet. Dersom det kun er et produkt som produseres på maskinen denne dagen, så settes faktor til 1. Dersom det produseres to produkter på maskin, så settes faktor til 0,5 på hvert produkt dersom de har belastet maskinen like mye. Juster forholdet mellom maskinene omtrentlig etter faktisk bruk. Dersom det skal registreres vrak eller uttak fra tidligere produksjon, settes faktor til 0 hvis dette produktet ikke er produsert gjeldende dag.
Når faktor er satt kan en klikke på Hent betongkostnad -> valgt dag for å oppdatere betongkost og betong m3 på alle produkter. Betongkostnad og m3 hentes fra styringen(Dorner) og gjenspeiler materialkostnad(medgåtte råvarer) og produsert m3 på valgt maskin. Bestillinger fra 21 blande vil tas med på maskin 11 så sant produksjon blir registrert mot kunde 10001 og byggeplass 1 i Dorner på 21 blander.
Angir hvor det aktuellet produktet har belastet en maskin. Summen av faktor på alle produkter produsert på samme maskin skal bli 1. Har en f.eks. produsert forskalingsblokker på maskin 1 en halv dag, og ingen produksjon på maskin 1 resten av dagen, så skal faktor fortsatt være 1. Har en produsert flere produkter på samme maskin, skal faktor gjenspeile hvor stor mye hvert produkt belastet maskinen i forhold til hverandre. Faktor blir brukt til å hente og beregne betongkostnad og m3.
Legg inn prøvenr manuelt på den aktuelle varen på den aktuelle dagen.
Nederst på siden finner en info som varenavn, pris, antatt gjennomsnittlig rabatt på den valgte varen. Disse verdiene er hentet fra produktets forkalkyle. En kan også se resultat basert på følgende formel: (Bruttoinntekt-Rabatt)-(((Variable kostnader + Betongkostnad) + Fast kostnader) + Lønnskostnader). Dette er også tall basert på forkalkyle, og gjenspeiler derfor ikke nødvendigvis det faktiske resultatet ved salg av produktet.
Registreringer og endringer i dagsproduksjon oppdaterer lagersystemet automatisk, med unntak av 2.sortering. Total produksjon(inkludert 2.sortering) - vrak blir automatisk oppdatert til lager, mens 2.sortering må altså justeres manuelt i lagersystemet(Salgsvarer) og trekke fra 1.sortering varenr for så å legge til 2.sortering varenr.
Viser timer og produksjon rapportert inn av den ansatte på valgt produkt. Dersom det er meldt inn feil produksjonstall, må disse endres her. Eventuelle endringer i timer gjøres i Timeoversikt produksjon, hvor en også registrerer akkordoverskudd.
I utgangspunktet opprettes dagene av seg selv når de ansatte registrerer sine timer, men om en har behov for å opprette dagen før timene er registrert, så gjør en det her.
Skulle det være behov for å endre dato, så klikk her og dato feltet vil bli redigerbart. NB! De ansattes timer blir ikke med til ny dag. Denne bør derfor kun brukes når det ikke er ført timer og produksjon mot dagen.
Rapport over dagens produksjon
Rapporten viser produksjon pr.maskin i en gitt periode. Sett ønsket fra og til dato.
Det finnes en del kalkulerte felter(enhetspris, varebeskrivelse, rabatt, bruttoinntekt, variable kostnader, lønnskostnader, faste kostnader) i dagsoppstilling som inneholder kalkulerte tall basert på tall fra dagsoppstilling og forkalkyle. Ved endringer i dagsoppstilling skjer disse kalkulasjonenen automatisk, men dersom en forkalkyle er endret så kan det være behov for å klikke på rekalkuler dagsoppstilling.
Hent betongkostnad og m3 til alle produkter på valgt dag.
Hent betongkostnad og m3 kun til valgt produkt på valgt dag.